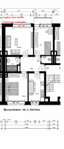
Grundriss Blumenthalstr. 49, 2. OG links