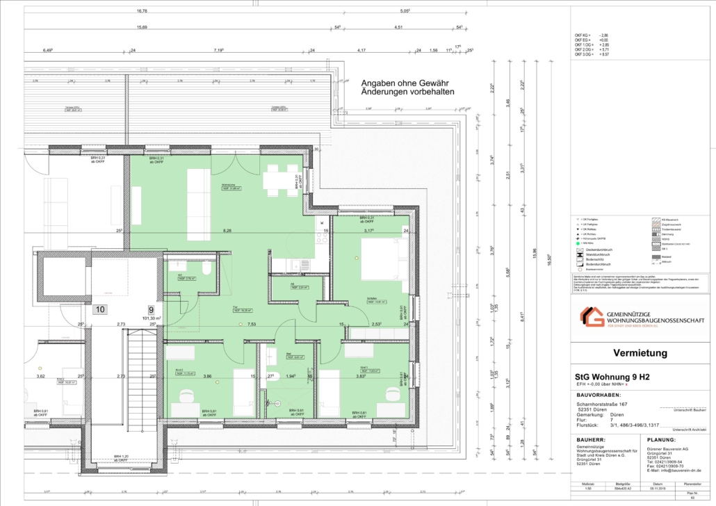
2021.10.04_Scharnhorststraße_167_StG WE 9