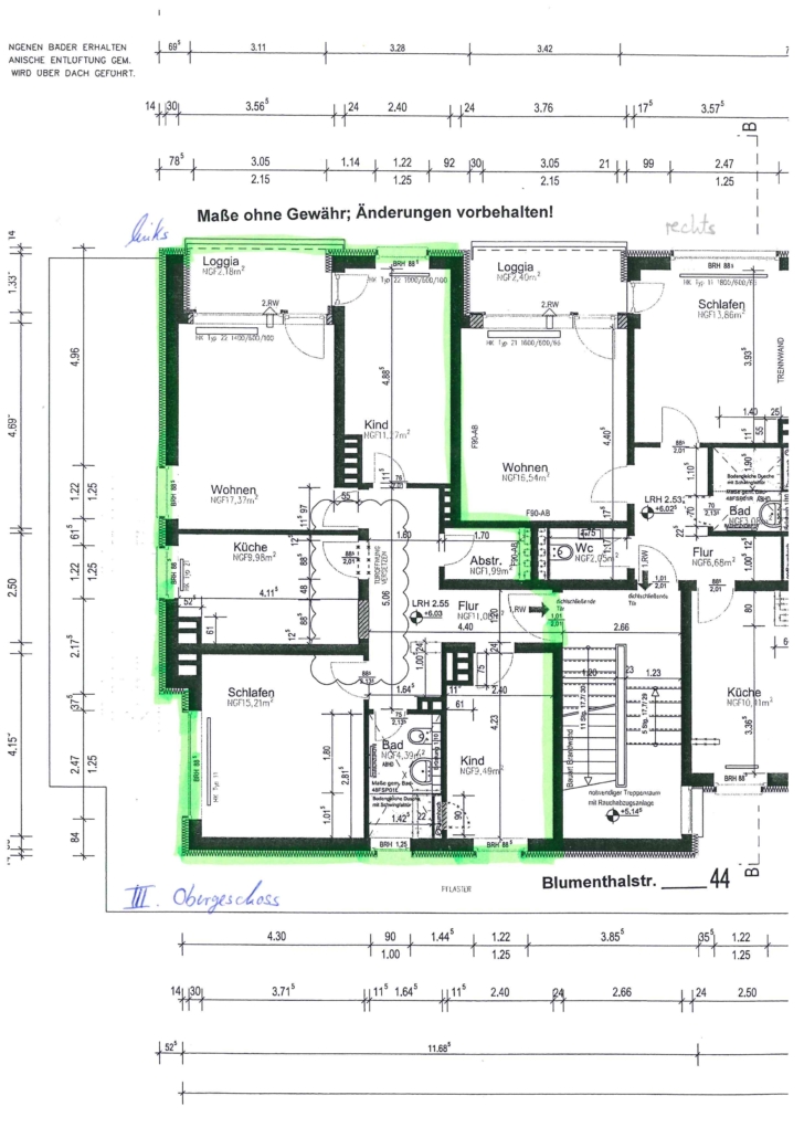
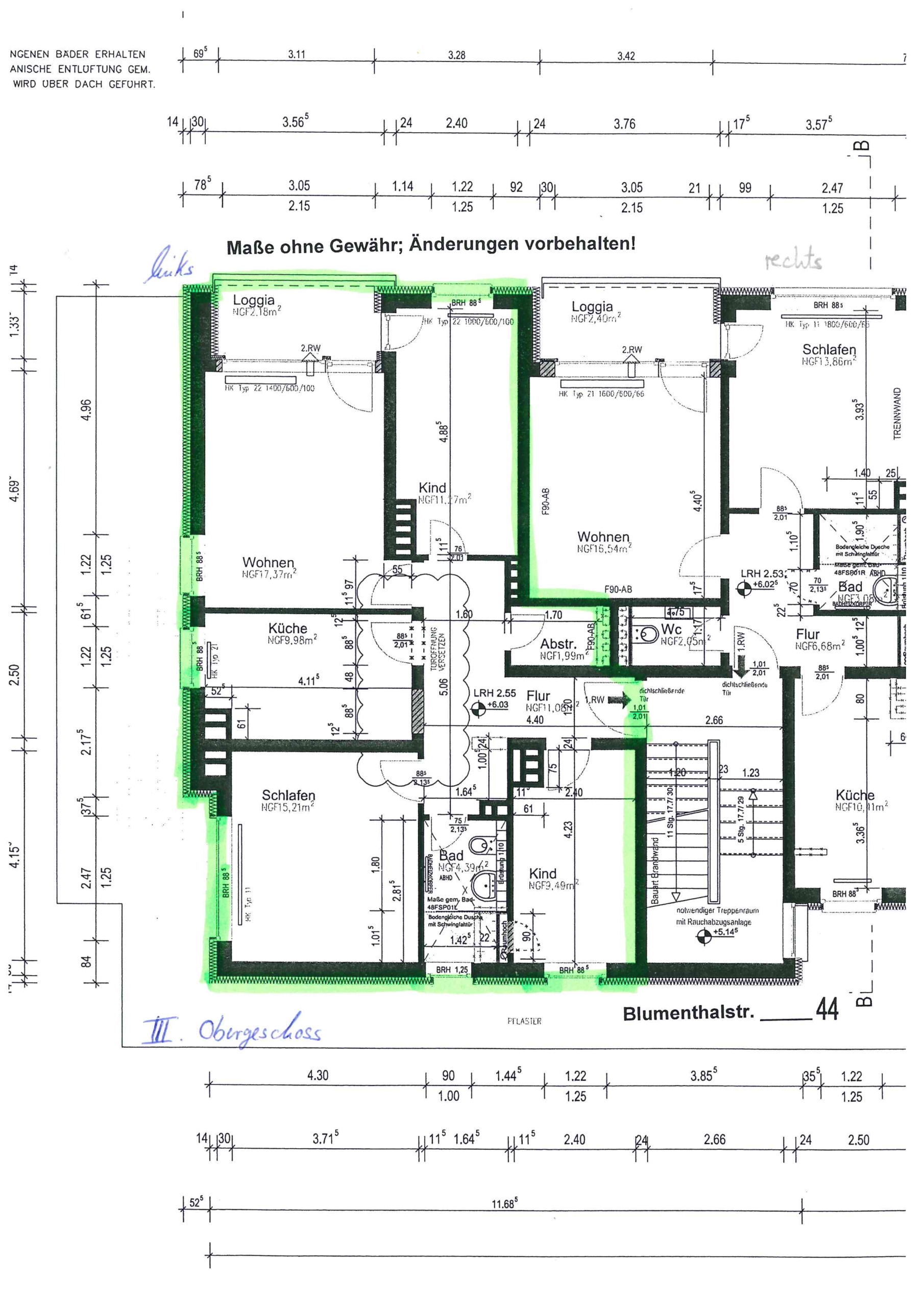
Blumenthalstr. 44, 3. OG links